Einzimmer-Bungalow – New 2026

Bis zu 3 Personen
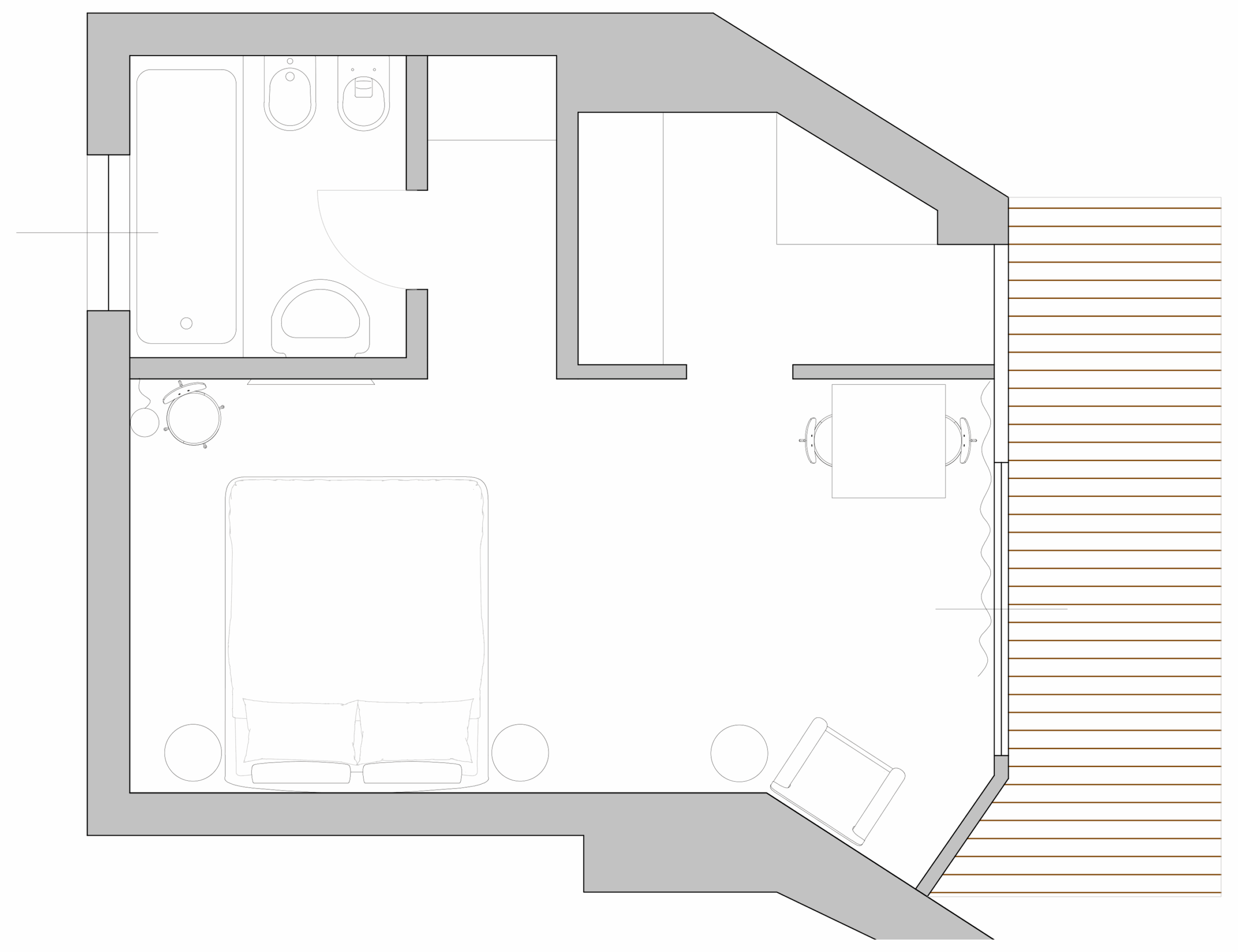
1 Doppelbett (200x200) und ein Zusatzbett
25 m²

Unsere kürzlich renovierten Einzimmer-Bungalows bestechen durch neue Einrichtung und hochwertige Details e bieten nun noch mehr Komfort in einem modernen, eleganten Ambiente.

Die perfekte Lösung für einen unabhängigen Aufenthalt, wo Natur, Privatsphäre, Freiheit und Grünfläche beitreten. Ein Urlaub in engem Kontakt mit der Natur, weg von überfüllten Orten.

Diese charmanten Bungalows mit Küchenzeilen sind auf der westlichen Seite des Resorts, im Herzen eines üppigen Gartens, gelegen. Sie bestehen aus einem Schlaf-/Wohnbereich mit großen Schiebetüren, die auf eine private Terrasse mit Tischen und Stühlen für Mahlzeiten im Freien führen.

Freier Zugang zum Armonia SPA mit Nutzung von Cristallo-Schwimmbad, Fitnessraum, Whirlpool, Sauna und türkischem Bad.

Jetzt buchen